物件情報Property details

【販売を終了しました】松⼾新⽥第3 1号棟

住所

千葉県松⼾市松⼾新⽥

家賃・価格

3,730万円

築年月

2023年03⽉

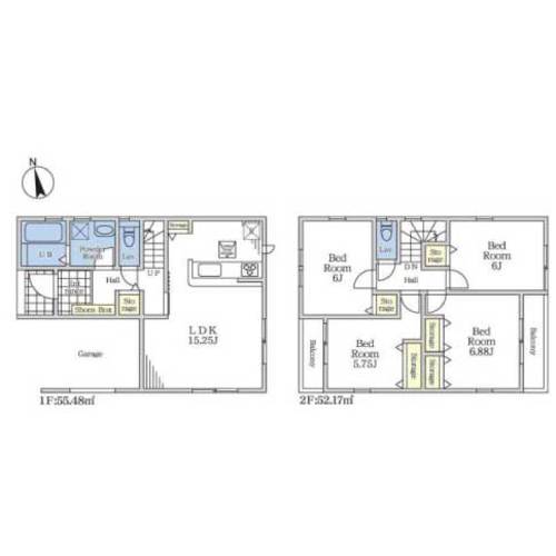
間取り

4LDK

専有
面積

107.65㎡

坪数

アク
セス

JR武蔵野線 新⼋柱 徒歩12分

物件情報

最寄駅 新⼋柱駅 / ⼟地⾯積 93.51㎡ / 構造・規模 ⽊造2階建 / 建物⾯積 107.65㎡ / ⼟地権利 所有権 / ⽤途地域 1種住居 / 現況 建築中 / 引渡可能時期 2023年3⽉予定 / 建築確認番号 第22UDI1W建04640号

設備
追焚機能,浴室乾燥機,シャワー付洗⾯化粧台,システムキッチン,浄⽔器,床下収納,照明器具,⼈感センサー付照明,ダウンライト,モニタ付インターホン,ディンプルキー

備考
利⽤駅1:新京成電鉄みのり台 徒歩11分

新築
チェックポイント!
24時間換気システム,外壁サイディング,追焚機能,浴室乾燥機,シャワー付洗⾯化粧台,システムキッチン,浄⽔器,床下収納,照明器具,⼈感センサー付照明,ダウンライト,モニタ付インターホン,ディンプルキー

PDFで情報を見る